白河市久田野
価格
1,934.7万円
所在地
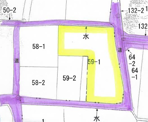
福島県白河市久田野59-1の一部( 地図)
更地にてお引渡し、閑静な住宅地です♪
地図
物件概要
| 物件名 | 白河市久田野 |
|---|---|
| 所在地 | 福島県白河市久田野59-1の一部 |
| 交通 | 東北本線久田野駅 車3分 |
| 取引態様 | 媒介 |
| 物件種目 | 土地 |
| 価格 | 1,934.7万円 |
| 土地権利 | 所有権 |
| 土地面積 | 1,230㎡(372.07坪) |
| 接道 | 公道 南・東側 3.5~4m |
| 用途地域 | 無指定地域 |
| 都市計画 | 非線引 |
| 建ぺい率 | 60% |
| 容積率 | 200% |
| 地目 (登記) |
宅地 |
| 地目 (現況) |
宅地 |
| 学区 | 白河第四小学校 東北中学校 |
| 設備 | ガス:個別LP 水道:公営(給水引込管無、買主側での工事要) 雑排水:本下水(宅内汚水桝あり) 汚水:本下水(宅内汚水桝あり) |
| 引渡し | 相談 |
| 現況 | 上物あり(解体予定) |
| 備考 | ・既存木造2階建住宅、倉庫、物置等あり。解体撤去を行い、整地にてからの引渡しとする。 ・売主側にて土地を分筆してからの引渡しとする。 ・売主側で既存給水管の布設替工事を行います。 ・接面市道に道路側溝無し。 ・市道内に上水道菅HIVPΦ100有り。 |
| 情報公開日 | 2024年9月24日 |
| 情報更新日 |
当物件へのお問い合わせ
● 電話でのお問い合わせ
0248-27-1131(営業時間/9:00~18:00)電話をかける
● メールフォームからのお問い合わせ
※docomo、au、softbank等のキャリアメールをご利用の方には返信メールが届かない場合がございます。
ご不明な点があれば電話(0248-27-1131)にてご連絡ください。
当物件へのお問い合わせ内容を入力して送信してください。
