白河市みさか2丁目
価格
1,500万円
所在地
福島県白河市みさか2丁目3-9( 地図)
リノベーション済(2024年)家具付き物件です✨
小学校近くの閑静な住宅街
メガステージ白河まで車で約5分と利便性のよい立地です
地図
物件概要
| 物件名 | 白河市みさか2丁目 |
|---|---|
| 所在地 | 福島県白河市みさか2丁目3-9 |
| 交通 | 東北新幹線新白河駅 車8分 |
| 取引態様 | 媒介 |
| 物件種目 | 中古住宅 |
| 価格 | 1,500万円 |
| 土地権利 | 所有権 |
| 土地面積 | 239.98㎡(72.59坪) |
| 建物面積 | 92.73㎡(28.05坪) |
| 建物構造 | 木造2階建 |
| 築年月 | 1993年12月 |
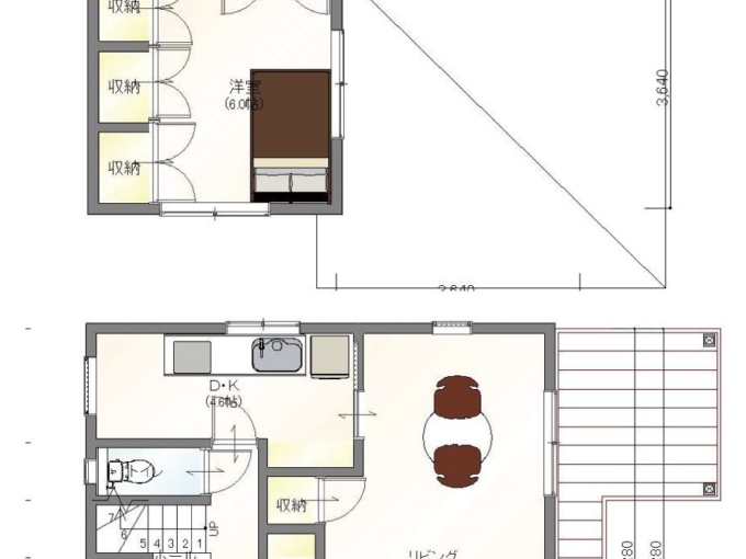
| 間取り | 2LDK |
| 接道 | 私道 北西側6m |
| 用地地域 | 第一種低層住居専用地域 |
| 都市計画 | 非線引 |
| 建ぺい率 | 50% |
| 容積率 | 80% |
| 地目 (登記) |
宅地 |
| 地目 (現況) |
宅地 |
| 学区 | みさか小学校 白河第二中学校 |
| 設備 | ガス:LP 水道:公営 |
| 引渡し | 即可 |
| 現況 | 空家 |
| 備考 | ・リフォーム済(2024年9月) |
| 情報公開日 | 2025年11月21日 |
| 情報更新日 |
当物件へのお問い合わせ
● 電話でのお問い合わせ
0248-27-1131(営業時間/9:00~18:00)電話をかける
● メールフォームからのお問い合わせ
※docomo、au、softbank等のキャリアメールをご利用の方には返信メールが届かない場合がございます。
ご不明な点があれば電話(0248-27-1131)にてご連絡ください。
当物件へのお問い合わせ内容を入力して送信してください。
